










































$210,000
MLS #:
2607839
Beds:
3
Baths:
1.75
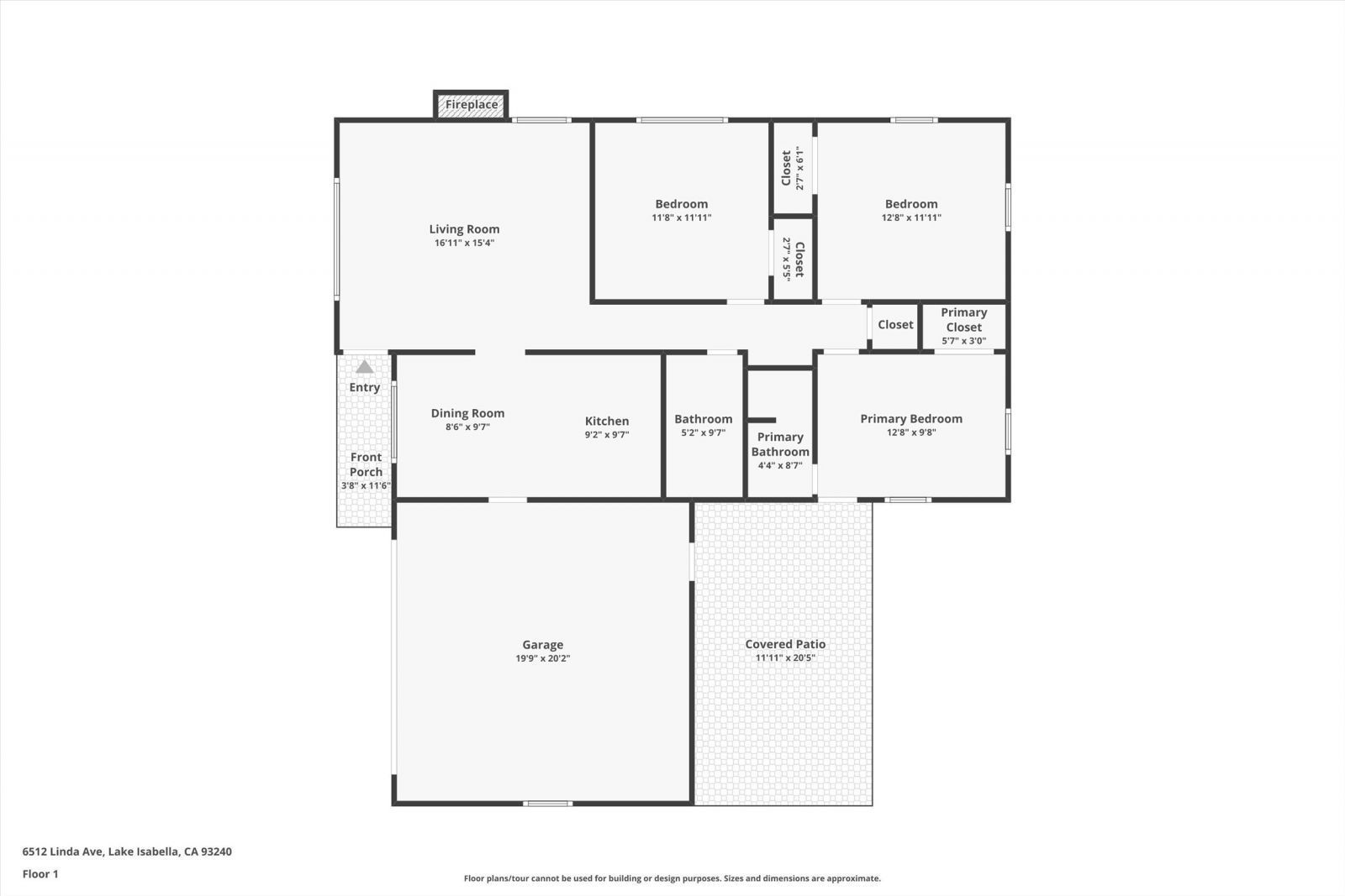
Sq. Ft.:
1124
Lot Size:
0.17 Acres
Garage:
2 Car Attached
Yr. Built:
1967
Type:
Single Family
Single Family - Resale Home, Site Built Home
Area:
Lake Isabella 93240
Subdivision:
Mtn Mesa
Address:
6512 Linda AVE
Lake Isabella, CA 93240
Your LAKE LIFE AWAITS
Nestled in the Mount Mesa neighborhood of Lake Isabella, this 1,124 sq ft, 3-bedroom, 2-bathroom home offers comfortable living. Built in 1967, the property features updated flooring and newer appliances, a practical floor plan, and a bright living area. The spacious backyard includes dedicated RV parking, ideal for travelers or extra storage. A 2-car attached garage adds convenience and storage. Proximity to the lake and hospital provides easy access to recreation and medical amenities.
Interior Features:
Bay Windows
Ceiling Fans
Cooling: Evap. Cooler: Multi-room Ducting
Fireplace
Flooring- Laminate
Heating: Wall Heater
Window Coverings
Exterior Features:
Construction: Stucco
Fenced- Full
Foundation: Permanently Attached
Landscape- Partial
Patio- Covered
Roof: Composition
RV/Boat Parking
Trees
View of Mountains
Appliances:
Oven/Range
W/D Hookups
Water Heater
Other Features:
Resale Home
Site Built Home
Utilities:
Power Source: City/Municipal
Propane: Hooked-up
Septic: Hooked-up
Water: City/Municipal
Listing offered by:
Ken Austin - License# 01461427 with Keller Williams Realty Tehachapi - (661) 821-5567.
Map of Location:
Data Source:
Listing data provided courtesy of: Southern Sierra MLS (Data last refreshed: 12/17/25 1:36am)
- 7
Notice & Disclaimer: Information is provided exclusively for personal, non-commercial use, and may not be used for any purpose other than to identify prospective properties consumers may be interested in renting or purchasing. All information (including measurements) is provided as a courtesy estimate only and is not guaranteed to be accurate. Information should not be relied upon without independent verification.
Notice & Disclaimer: Information is provided exclusively for personal, non-commercial use, and may not be used for any purpose other than to identify prospective properties consumers may be interested in renting or purchasing. All information (including measurements) is provided as a courtesy estimate only and is not guaranteed to be accurate. Information should not be relied upon without independent verification.
More Information
For Help Call Us!
We will be glad to help you with any of your real estate needs.(760) 417-0947
Mortgage Calculator
%
%
Down Payment: $
Mo. Payment: $
Calculations are estimated and do not include taxes and insurance. Contact your agent or mortgage lender for additional loan programs and options.
Send To Friend